2016年中国国技术大奖赛-第8届广东省精机技术大奖赛半决赛样题正式早就发布在:

福利来了
乐鱼体育
和蔡司作为大赛数控车赛项家检测服务单位,针对样题,提前做了检测方案。
想了解下吗?福利来了。。。
数控车工学生组样题检测方案
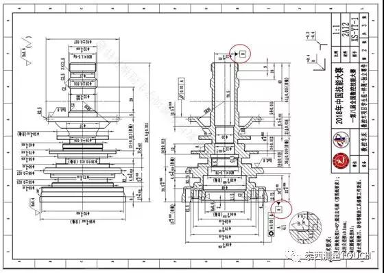
本文主要针对第八届全国数控大赛数控车工学生组样题中图号为XS-YT-1的零件做的检测方案。
分析图纸,找出图中标注的基准。

注:本图纸中有两个基准,基准A和基准B。
零件定位和固定
对零件材料进行分析,利用零件本身的特性找到合适的装夹方式。本测量零件材料为2A12铝,可以利用两块V型铁组合装夹或者一块V型铁和一个小千斤顶进行装夹或者柔性夹具组合装夹。方式如下图所示(零件非本次样题零件,只是为说明装夹方式):

检测项目确定
在基准B圆柱面和图位H2直径44尺寸圆柱面处分别拾取两个圆柱,构造一个台阶圆柱,作为空间旋转,基准A平面作为坐标Y轴原点,台阶圆柱轴线作为坐标X、Z原点建立基本坐标系。根据图纸评分表确定检测项目。

1、ZEISS三坐标检测项目
* 评分表5号尺寸:直径Ø96,在柱面上拾取两个圆截面,每个截面5个点,形成圆柱,输出圆柱直径。
* 评分表6号尺寸:直径Ø92,在柱面上拾取两个圆截面,每个截面5个点,形成圆柱,输出圆柱直径。
* 评分表7号尺寸:直径Ø69,在柱面上拾取一个圆截面,每个截面7个点,形成圆,输出圆直径。
所有直径尺寸同上检测方法。
*评分表28号尺寸:长度17,在左端面上测量一平面,均布,4个点;在右端面上测量一平面,均布,5个点。求左端面与右端面垂直距离。
* 评分表29号尺寸:长度5,在左端面上测量一平面,均布,5个点;在右端面上测量一平面,均布,5个点。求左端面与右端面垂直距离。
所有长度尺寸同上检测方法。
* 评分表53号尺寸:同轴度,在基准B柱面上拾取一个圆柱,均分5个圆截面,每个圆截面5个点;被测元素直径88处,在柱面上拾取一个圆柱,分布2个圆截面,每个圆截面7个点;调入同轴度命令,分别填入相应的元素和名义值,得到同轴度误差值。
* 评分表54号尺寸:平行度,在基准A端面上测量一平面,均布,4;被测元素端面上测量一平面,均布,4;调入平行度命令,分别填入相应的元素和名义值,得到平行度误差值。
注:以上测量要素的检测仅针对样题中标注的尺寸测量。

2、通用量具检测项目
* 评分表1号和2号尺寸:直径Ø88和直径82,由专业裁判用通用量具检测。
* 根据评分表先后顺序调整评价的尺寸,输出测量报告并保存。(此图报告数据只为图例)。
本文描述只是数控车学生组样题检测方案中部分检测项目的说明,欢迎大家针对其他样题检测方案交流探讨。

检测报告样例
欢迎来撩
1、怎么样?是不是意犹未尽,还想了解更多检测知识?
2、是不是很想和检测能手来一场深入的互动?
知识无界,重在分享,快快加入我们分享会,扫下边二维码进群,很多行业能手、检测能手等你互动。。。来一场头脑风暴吧。。。
请扫描以下二维码进群,和行业能手、检测能手们一起互动,抛出你的问题,抛出你的疑问。。。
服务热线:
13810804681